Page suivante
Page précédente
Bruges (33520)

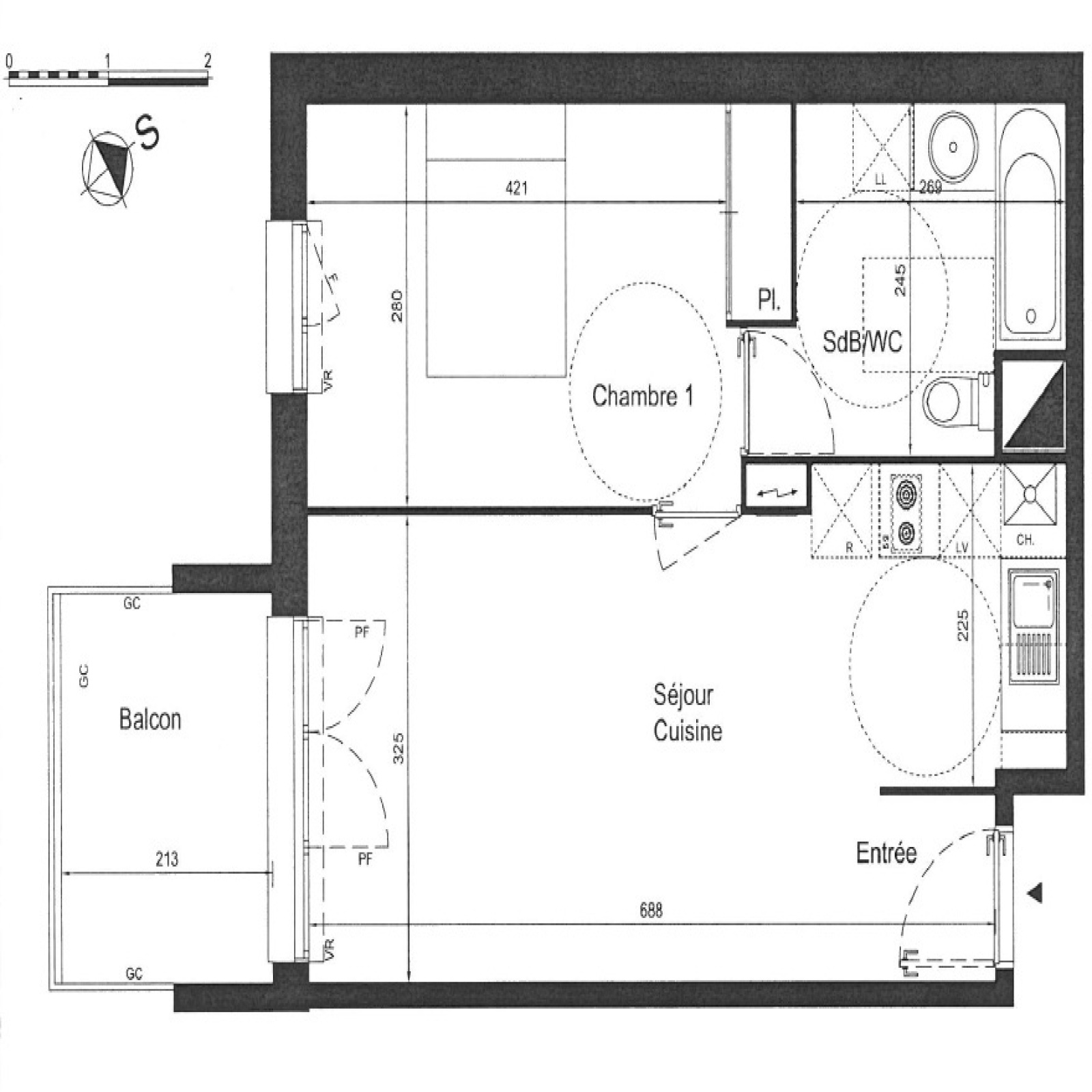
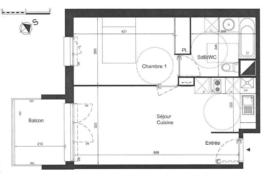
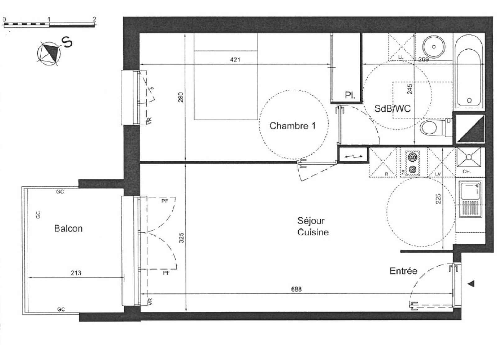
Appartement 2 pièce(s) 1 chambre(s) 44 m²

1
Balcon
Ascenseur
Réf 793
L'Agence Cadre d'Envies vous présente en exclusivité ce bel appartement de type T2, situé au deuxième et dernier étage d'une résidence sécurisée avec ascenseur, au coeur d'un quartier résidentiel calme et recherché de Bruges. D'une superficie de 44 m², il offre un agencement fonctionnel et une luminosité tout au long de la journée. L'entrée s'ouvre sur un séjour agréable avec cuisine ouverte, idéal pour profiter d'un espace convivial. La chambre spacieuse, également équipée d'un placard, offre confort et praticité. La salle de bain est accessible par la chambre, un vrai plus au quotidien. Un balcon complète ce bien, parfait pour installer un petit salon d'extérieur. Une place de parking couverte privative est incluse, facilitant votre stationnement. L'appartement dispose également d'un cellier/local privatif, un véritable atout pour le rangement et le stockage et d'un local à vélo sécurisé. Vous apprécierez également la proximité des transports en commun, des commerces, des écoles, ainsi que l'accès rapide au centre-ville de Bordeaux et de la rocade Bordelaise. Cet appartement est idéal aussi bien pour un premier achat que pour un investissement locatif. N'attendez plus pour venir le découvrir ! DPE: C ( 96 kWh/m2) GES: C ( 20 kWh/m2) Contactez-nous pour pour organiser une visite. www.cadredenvies.fr Contact : Christelle Martin au 06.32.99.27.20 Prix de vente honoraires d'agence inclus 170 000 Euros Honoraires à la charge de l'Acquéreur 9 623 Euros TTC Prix net vendeur 160 377 Euros. Les informations sur les risques auxquels ce bien est exposé sont disponibles sur demande ou sur le site Géorisques : www.georisques.gouv.fr
Les informations sur les risques auxquels ce bien est exposé sont disponibles sur le site Géorisques

Bilan énergétique

Diagnostics énergetiques
A propos de ce bien Caractéristiques de ce bien
  • Surface 44 m²
  • carrez 43,90 m²
  • 1 chambre(s)
  • 1 salle(s) d'eau
  • construit en 2017
  • cuisine aménagée
  • Chauffage collectif : autre (autre)
  • 1 parking(s)
  • exposition Sud-Ouest
  • 2 niveau(x)
  • 2ème étage
  • 2 étage(s)
  • ascenseur
  • balcon
  • interphone

Composition

Composition de ce bien

Rez-de-chaussée

  • entrée 2,51 m²
  • sdb + wc 6,52 m²
  • séjour-cuisine 21,93 m²
  • chambre 1 12,94 m²
  • balcon 6 m²

Info copro

Copropriété
  • Copropriété Oui
  • Nombre de lots 40
  • Quote part annuelle des charges 1 093 €
  • Statut du syndic Soumis à une procédure de redressement

Financier

Informations financières
Prix net vendeur 160 377 €
Taxe foncière annuelle 975 €

Autour du bien

Découvrez le quartier

Simulation

Calcul des mensualités
* Champs obligatoires
Christelle MARTIN Négociatrice